MODERN BUNGALOW HOUSE
TAMAN KELEMAK UTAMA PHASE 2
UPCOMING PROJECT
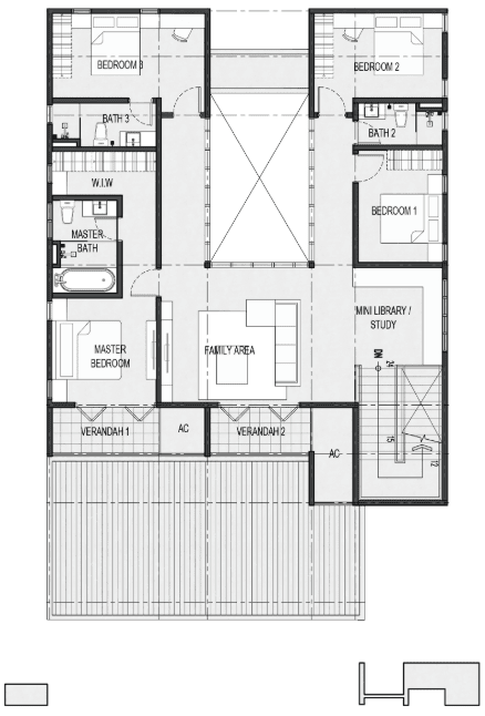
Type: Courtyard Bungalow 2-Storey
Tenure: Freehold
Double-Storey Elegance – 5 bedrooms + 1 flexible space, 5 bathrooms + 1 utility room
Private Green Indoor Retreat – Enjoy natural light, ventilation, and a serene interior courtyard
Spacious 3-Cars Carporch – Modern convenience meets sleek design
























